| Programm | Aufnahmeheim für männliche Jugendliche in Krisensituationen | ||||||||||||||||||||||||
| Bauherrschaft | Stiftung Focus, Basel (SIA Phase 31-33) / Stiftung AH Basel, Basel (SIA Phase 41-53) | ||||||||||||||||||||||||
| Leistung IB |
|
||||||||||||||||||||||||
| Architektur Planung | 01/2020 bis 04/2024 | ||||||||||||||||||||||||
| Architektur Ausführung | 05/2024 bis 04/2026 | ||||||||||||||||||||||||
| Geschossfläche | 3'293 m2 | ||||||||||||||||||||||||
| Bauvolumen | 11'810 m3 | ||||||||||||||||||||||||
| |||||||||||||||||||||||||
Das Aufnahmeheim Basel (AHBasel) ist eine sozialpädagogische, kurzzeitstationäre Institution für männliche minderjährige Jugendliche im Alter von 12 bis 18 Jahren, die sich in einer krisenhaften Entwicklung befinden. Aufgenommen werden Jugendliche aus der ganzen Deutschschweiz, die durch Behörden aus straf- oder zivilrechtlichen Gründen eingewiesen werden.
Mitten im Grossbasler Stadtgebiet befindet sich das bestehende AHBasel in einem grosszügigen Blockinnenhof zwischen Burgfelderstrasse und dem Nonnenweg. Das alte Bestandsgebäude muss ersetzt werden, da es einen hohen Sanierungsbedarf aufweist und die aktuellen Anforderungen des Bundesamtes für Justiz nicht mehr erfüllt.
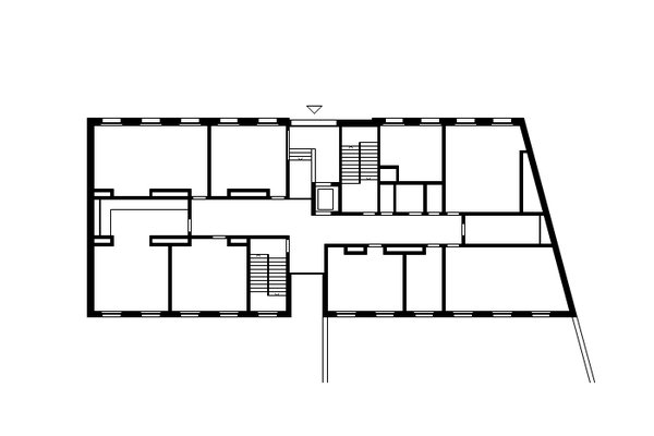
Mit dem Neubau wird die Aufnahmekapazität leicht erhöht, die betrieblichen Abläufe optimiert und ausschliesslich Einzelzimmer angeboten. Durch den an das Bestandsgebäude angrenzenden Bauperimeter bleibt das AHBasel auf dem Areal und tritt neu am Blockrand in Erscheinung. Nutzungstechnisch bietet das Gebäude mit der offenen und der geschlossenen Abteilung zwei voneinander räumlich wie funktional komplett entkoppelte Abteilungen.
Beide Abteilungen besitzen jeweils neun Einzelzimmer, Wohn- und Freizeiträume sowie Schulzimmer und Wohnküche. Ergänzt wird das Raumprogramm mit Einzel- und Gruppenräumen für sozialpädagogisches Arbeiten, einer Holzwerkstatt im Sockelgeschoss für die geschlossene Abteilung und Büros für die Mitarbeitenden. Rückseitig vom Gebäude erhalten die Jugendlichen im Aussenbereich und Spazierhof ein Basketballfeld für sportliche Aktivitäten.
Die Formgebung zum Nonnenweg mit Steildach, Sockelzone und Mittenbetonung der Fassade erzeugt eine dezent repräsentative Gestalt, während durch die Materialwahl eine angemessene subtile Erscheinung mit reduzierter Form- und Farbgebung angestrebt wird.
Der viergeschossige Neubau ist zum Nonnenweg horizontal gegliedert mit einer verputzten Lochfassade über einer Sockelzone im Erdgeschoss. Der massive Sockel aus Betonfertigteilen unterstreicht die öffentliche Bedeutung des Gebäudes und steht metaphorisch für die mentale Festigung und charakterliche Erdung, welche die Jugendlichen im AHBasel erlangen sollen. Auf dem Steildach des Hauptgebäudes wird eine grossflächige Photovoltaikanlage installiert, die sich über die gesamte Dachfläche der Frontseite erstreckt.
Weitere Informationen